Venta
Local o oficina en colon 1800
Local comercial en Colon esquina Pasco
  • USD 106.500
  • Dirección Local comercial en Colon esquina Pasco
  • Ciudad Rosario
  • Zona Centro
  • País Argentina

Visión general

  • RLO6489607
  • ID de propiedad
  • Local
  • Tipo de propiedad
  • 0
  • Ambiente
  • 0
  • Dormitorio
  • 0
  • Baño
  • 0
  • Garaje
  • 71.00

Descripción

Local comercial en Colon esquina Pasco

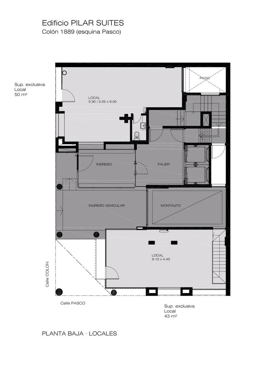
Ubicacion: Colon 1889 esquina Pasco. El Edificio Pilar Suites se encuentra próximo a la zona de Facultades -Universidad Nacional de Rosario- y Parque Urquiza. Su ubicación cercana a la Avenida Pellegrini representa ser un importante acceso para el ingreso y egreso de la ciudad.

Proyecto: El edificio se desarrolla en 6 pisos + PB, con 22 unidades en total y los tipos de Dptos son de 2, 3 y 4 ambientes. Ademas, se ofrecen cocheras en el predio.
La unidad se puede desarrollar como local comercial u oficina.

Descripcion de la unidad: Local comercial en la planta baja al frente por Pasco de 28m2 con deposito en subsuelo con un total de 71m2.
Unidad disponible 00-01

Información de contacto

Ver anuncio

Título para: Pregunte por el inmueble

    Propiedades similares

    Comparar listados

    Comparar